Neusiedl am See - Luxus pur Wohnhaus in absoluter Toplage mit direktem Seezugang und eigenem Bootsanlegeplatz zu verkaufen.
Vorzimmer, Wohn-Esszimmer, Schlafzimmer, Badezimmer mit Dusche, WC. Sehr gepflegte sonnige Terrasse, 2 Autoabstellplätze.
Wasser, Kanal, Strom, Gas-ZH., Fußbodenheizung.
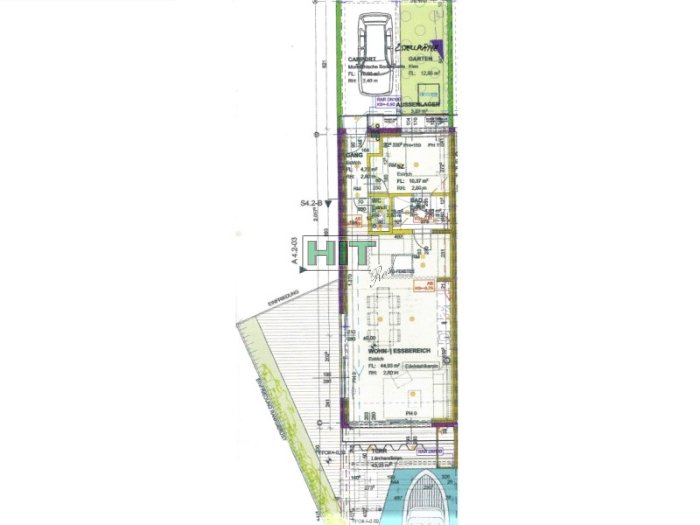
Wfl.: ca. 66m².
Vorzimmer, Wohn-Esszimmer, Schlafzimmer, Badezimmer mit Dusche, WC. Sehr gepflegte sonnige Terrasse, 2 Autoabstellplätze.
Wasser, Kanal, Strom, Gas-ZH., Fußbodenheizung.
Wfl.: ca. 66m².
Wichtige Daten
| Aktenzahl: | FH01/23 |
| Typ: | Ferienhaus |
| Land: | Österreich |
| Standort, Lage: | Neusiedl am See |
| Ortshomepage: | www.neusiedlamsee.at |
| Kauf: | |
| Wohnnutzfläche ca.: | 66 m² |
| Terrasse ca.: | |
| Parkplätze: | |
| Vorzimmer: | |
| Wohnzimmer: | |
| Schlafzimmer: | |
| Badezimmer: | |
| Toiletten: | |
| Komfort: | Luxuriös |
| Strom: | |
| Gas: | |
| Zentralheizung: | |
| Gasheizung: | |
| Ortswasserleitung: | |
| Kanal: | |
Nebenkosten: | |
| 1. Grunderwerbsteuer vom Wert der Gegenleistung: | 3.5% | 19.250,00 EUR |
| 2. Grundbuchseintragungsgebühr: | 1.1% | 6.050,00 EUR |
| 3. Kosten der Vertragserrichtung und grundbücherlichen Durchführung: | laut Vereinbarung | |
| 4. Vermittlungsprovision: | 3% | 16.500,00 EUR |
| +20% MWST. | 3.300,00 EUR | |
| Gesamtkosten inkl. Kaufpreis: | 595.100,00 EUR |
Anfrage

english
slovenský
magyar